Не упусти свой шанс! Последние акции от застройщиков  ▼

Продается 2-комнатная квартира, Строительный пр-д, 9С8

19 500 000 Р

Строительный пр-д9С8

Дата публикации: 11 декабря 2025

Дата обновления: 26 апреля 2026

Телефон: 
Показать телефон

+7 (909) 659-83-30

Агентство:  Простор-недвижимость

От застройщика: 0 квартир в продаже

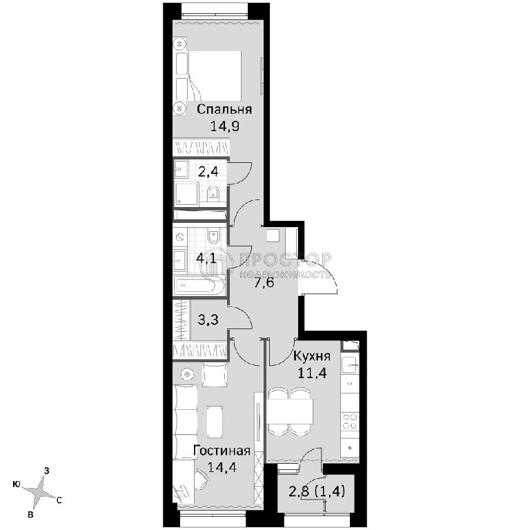
Этаж: 10 / 42

Общая: 59,8 м2

Жилая: 29,9 м2

Кухня: 10,8 м2

Комнаты: не указано

Балкон/лоджия: не указано

Лифт: есть лифт

Окна: окна во двор и на улицу

Санузел: совмещенный

Мусоропровод: не указано

Состояние квартиры: требуется ремонт

Тип дома: не указано

Год постройки: 2027

Территория: не указано

Парковка: не указано

Статус сделки: продажа

Сделка: прямая продажа

Собственность: не указано

Основание права собственности: не указано

Описание

Код объекта: 1577423. Продается стильная квартира в ЖК Скай Гарден! Этаж: 10 Площадь: 60 м2 Комнаты: 2 по 15 м2 Кухня: 11 м2 Санузлы: 2 Постирочная: Да Лоджия: 1,5 м2 (с возможностью использования как рабочий кабинет или лаунж-зону) Отделка - White Box! Остается только добавить мебель по вашему вкусу. На фото примерный дизайн, который вдохновит вас на создание идеального пространства!Идеальная планировка: мастер-спальня с гардеробом расположена в одном конце квартиры, а детская комната в другом. Это обеспечивает максимальную приватность и комфорт для всей семьи. В мастер-спальне вы найдете гардероб современное решение для организации пространства. Здесь будет только функциональная мебель и воздух! Большая лоджия с красивым видом на парк станет отличным местом для работы или отдыха. В кухне-гостиной можно разместить диван, создавая дополнительное спальное место для гостей и уютную атмосферу для семейных вечеров. Два санузла обеспечивают удобство и комфорт для всех членов семьи. В детской комнате достаточно места для уютного спального места, вместительного шкафа и игровой зоны.ЖК Скай Гарден это комплекс бизнес-класса с закрытой территорией, выходом на набережную и удобным подземным паркингом. Здесь есть все возможности современной системы "Умный дом", а также развитая инфраструктура: магазины, школы, детские сады и многое другое.Не упустите шанс стать владельцем этой уникальной квартиры! Звоните прямо сейчас для организации просмотра

Квартира на карте

ПанорамыКарта
Спецпредложения
Добавить объявление